
Stadt Leipzig










Standort
Volumen
Zeitraum
Die Herausforderung.
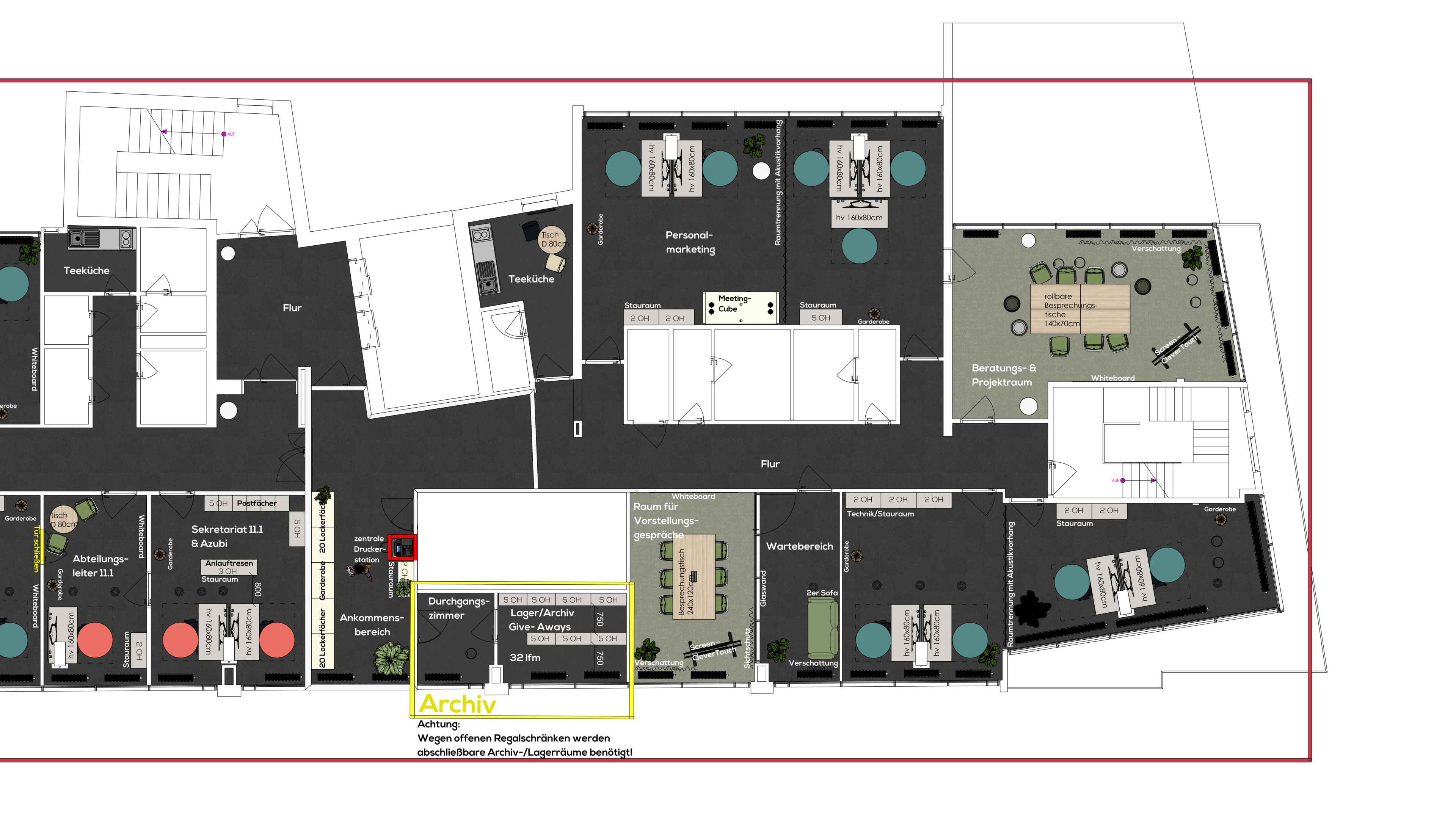
Der Umzug in ein neues Gebäude bot die Chance, Arbeitsflächen neu zu denken – brachte aber auch komplexe Anforderungen mit sich: unterschiedliche Abteilungsbedarfe, begrenzte Flächen, der Wunsch nach mehr Flexibilität und moderner Technik. Gleichzeitig galt es, bestehende Arbeitsprozesse zu optimieren, eine zentrale Aktenlagerung einzuführen und ein Desksharing-Konzept umzusetzen, das sowohl Effizienz als auch das WIR-Gefühlstärkt.
Die Lösung.
Der Umzug in ein neues Gebäude bot die Chance, Arbeitsflächen neu zu denken – brachte aber auch komplexe Anforderungen mit sich: unterschiedliche Abteilungsbedarfe, begrenzte Flächen, der Wunsch nach mehr Flexibilität und moderner Technik. Gleichzeitig galt es, bestehende Arbeitsprozesse zu optimieren, eine zentrale Aktenlagerung einzuführen und ein Desksharing-Konzept umzusetzen, das sowohl Effizienz als auch das WIR-Gefühlstärkt.
Das Ergebnis.
Ein klar strukturiertes, zukunftsfähiges Arbeitsumfeld, das Raum optimal nutzt, Abteilungen sinnvoll verortet und flexible Arbeitsformen wie Desksharing unterstützt. Moderne Möbel, zentrale Aktenlagerung und neue Rückzugsorte verbessern Arbeitsabläufe, fördern Zusammenarbeit und stärken das WIR-Gefühl am neuen Standort.
Ein Blick in das Projekt:
Erbrachte Dienstleistungen
- 3D-Scanning
- Raumplanung
- Konzeptentwicklung
- Raumplanung
- Visualisierung
- Beschaffungsmanagement
Weitere Projekte

Industrie- und Handelskammer Chemnitz
Zum Projekt
ATN Hölzel GmbH
Zum Projekt



